
Projeto de Casa de Madeira - Ohio
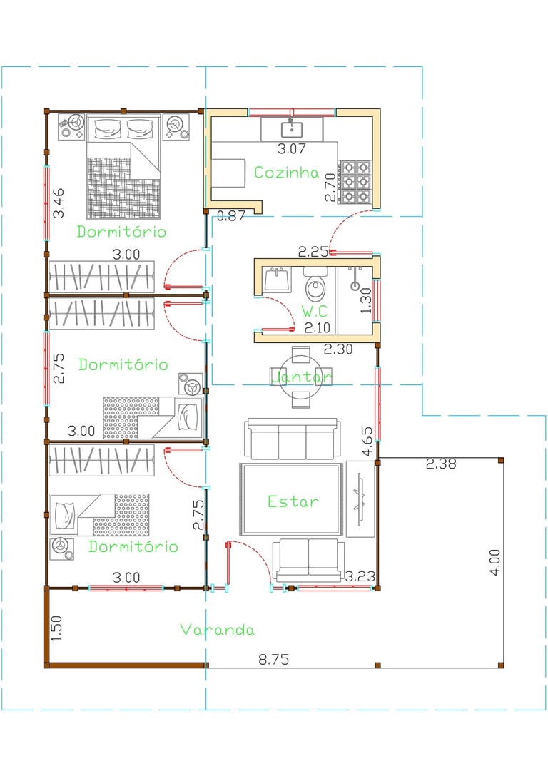
O projeto de casa de madeira Ohio é uma residência térrea de 77,58 m² com três dormitórios, varanda frontal e ambientes integrados entre sala, jantar e cozinha. Um modelo compacto em madeira maciça de Massaranduba, ideal para quem busca conforto, beleza e praticidade.
Tipo de projeto
Quantidade de quartos








Planta baixa

Gostou deste projeto?
Entre em contato com nossa equipe e saiba como adquirir o projeto Ohio ou adaptá-lo ao seu terreno.
Invista no seu projeto.
Adquira seu projeto completo e construa com total liberdade
ganhe 100% de Cashback na obra.
Receba todos os projetos técnicos e listas de materiais completas para sua obra.
Documentação completa assinada pela Metodum, garantindo segurança total.
Tenha a autonomia de iniciar sua construção quando quiser e com a equipe que preferir.
O valor pago pelo projeto é totalmente revertido em desconto na sua construção conosco.


Tudo o que você precisa saber antes de construir sua casa de madeira
Entenda as respostas para as principais dúvidas sobre durabilidade, financiamento e custo das casas de madeira Metodum


As casas de madeira Metodum são construídas com madeira maciça de Massaranduba, naturalmente resistente a cupins e fungos.
A manutenção externa é recomendada a cada 5 anos e a interna pode ultrapassar 10 anos sem necessidade de retoques.




As casas de madeira Metodum podem ser financiadas normalmente, seja por meio de Home Equity ou carta de crédito contemplada.
É possível iniciar sua construção com 20% de entrada e parcelar o saldo em até 200 meses, com aprovação rápida e condições acessíveis.
As casas de madeira Metodum custam até 30% menos que as de alvenaria, mantendo o mesmo conforto, isolamento térmico e padrão de acabamento.
Além disso, a construção é mais rápida, sustentável e com menor desperdício de materiais.
Formas de viabilizar sua obra
Do consórcio de imóveis ao home equity, a METODUM oferece caminhos reais para tirar sua casa do papel. Escolha a modalidade que combina com seu momento. E faça sua simulação


Consórcio de imóveis
Sem juros e com carta de crédito para construção da sua casa de madeira, chalé ou casa em alvenaria.
A contemplação acontece por sorteio ou lance, garantindo liberdade pra planejar no seu ritmo.
O consórcio imobiliário é perfeito pra quem quer se preparar com segurança e investir sem pressa, transformando o sonho em plano real.






Financiamento Imobiliário
Perfeito pra quem prefere comprar um imóvel pronto, sem passar por toda a rotina de obra.
O financiamento imobiliário oferece prazos longos, parcelas previsíveis e taxas competitivas, tornando a compra da casa pronta mais fácil e acessível.
Ideal pra quem busca conforto, praticidade e rapidez na conquista da casa própria.
Crédito para Construção
Pensado pra quem deseja comprar o terreno e construir do jeito que sempre quis.
O crédito para construção libera os recursos por etapas, conforme o avanço da obra, garantindo planejamento e controle total.
Ideal pra quem quer dar o primeiro passo do zero, com segurança e flexibilidade pra executar o projeto dos sonhos.
Home Equity
Use o seu imóvel como garantia e libere o valor que precisa pra construir agora, sem vender nada.
Com taxas menores e prazos maiores, o crédito com garantia de imóvel (Home Equity) é a opção ideal pra quem quer dinheiro rápido e juros baixos.
Perfeito pra viabilizar casas de madeira, chalés e obras de expansão com agilidade e tranquilidade.
